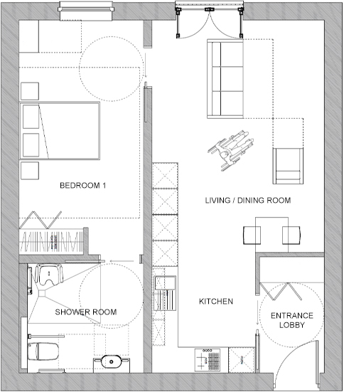
1 Bedroom Flat
| Zone | Size m | Area m2 |
| Master Bedroom | 4.5 x 2.9 + 1.0 x 1.5 | 14.6 |
| Bathroom | 2.9 x 2.4 | 7.0 |
| Kitchen | 3.9 x 2.1 | 9.0 |
| Living Room | 4.2 x 3.7 | 15.0 |
| Entrance Lobby | 1.5 x 3.8 | 5.7 |
| Storage | 1.3 x 0.9 | 1.2 |
| Total Area | 52.5 |

| Zone | Size m | Area m2 |
| Master Bedroom | 4.5 x 2.9 + 1.0 x 1.5 | 14.6 |
| Bathroom | 2.9 x 2.4 | 7.0 |
| Kitchen | 3.9 x 2.1 | 9.0 |
| Living Room | 4.2 x 3.7 | 15.0 |
| Entrance Lobby | 1.5 x 3.8 | 5.7 |
| Storage | 1.3 x 0.9 | 1.2 |
| Total Area | 52.5 |
